动调节球阀概述:
电动调节球阀主要用于对管道介质压力、流量、液位等参数的调整控*, 一般分为电动O型调节球阀和电动V型调节球阀,
通过输入4-20mA信号及220VAC电源即可控*球阀的运转开度。电动调节球阀根据使用工况不同,
可选用软密封或硬密封两种形式,其中常温常压可选软密封橡胶、聚四氟乙烯等,
高温高压场合可选择金属材质硬密封,适用于各种化工、石化、石油、电力、液化气、机械设备配套等领域。

电动V型调节球阀 电动O型调节球阀
电动调节球阀特点:
电动调节球阀内置伺服系统,无须另配伺服放大器,输入4-20mA信号及220VAC电源即可控*运转,
其中电动V型调节球阀带有特殊V型切口,不仅可将纤维切断,
防止卡死,它的V型开口可与阀座流道形成不同的V型角度,实现对管路介质各项参数的*确调节,
适用于各种纸浆或纤维等粘稠介质,有效保证管路的流通,又能防止球阀球芯卡死的现象。
电动调节球阀参数:| 公称通径 | DN15~DN300(mm) |
|
|
| 公称压力 | PN1.0、1.6、2.5、6.4MPa |
|
|
| 连接形式 | 法兰式,对夹式 |
|
|
| 驱动形式 | 电源驱动(可选防爆型,自带手动装置) |
|
|
| 电源电压 | AC110V、AC220V、AC380V(其他定*DC24) |
|
|
| 阀芯形式 | O型球型阀芯,V型阀芯结构 |
|
|
| 泄露量 | 按GB/T4213-92,小于额定KV0.01% |
|
|
| 动作时间 | 8~30(DN15-50) 36~60(DN65-300)可定* |
|
|
| 阀体材质 | 碳钢、不锈钢304、316 |
|
|
| 流量特性 | 近似快开特性 |
|
|
| 适用温度 | 软密封-40℃~-180℃;硬密封-40℃~-450℃ |
|
|
| 控*方式 | 智能调节型(输入输出4-20mA模拟量信号实现调节功能) |
| 使用介质 | 蒸汽、纸浆、污水、含有纤维颗粒固体悬浮介质及粉粒状介质 |
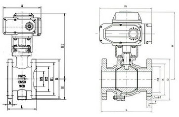
电动调节球阀结构图:电动调节球阀性能指标:
控**度:0.1%-3.0%(通过U4参数可调)
可接电动执行器反馈信号:电位器500Ω-10KΩ
可接收外部控*信号(DC):4-20mA(1-5V、0-10V、开关量等出厂前定*)
输入阻抗:250Ω;
通过修改U1参数可设定:①DRTA/正动作,RVSA/逆动作模态
②输入信号中断时“中断”模态—OPEN(开)、STOP(停)、SHUT(闭)
可选:①可控硅输出(AC,600V,25A)②继电器输出(AC,250V,10A)◆定货时指明
输出执行器位置信号:低漂移输出4-20mADC对应执行器全闭至全开,
信号完全与输入隔离(光电隔离),输出负载≤500Ω
环境温度:0-70℃,湿度:35-85%
有超温保护功能:定位器壳内温度≥70℃时,定位器停止对执行器的开闭控*,
可通过按键自由标定输入信号所对应执行器的动作区间(一般标定为电动执行器全闭、全开位置)